Przejdź do lewego menu Przejdź do prawego menu Przejdź do treści Przejdź do stopki
☰ Menu Prawe Menu ☰
Oficjalne logo BIP
Strona główna Instrukcja Strona www Redakcja Rejestr zmian Statystyki stron Deklaracja dostępności
Gmina Wąsewo

Środa 29.04.2026

A A A A
A A+ A++
zaawansowane

Menu

  • ESP - Elektroniczna Skrzynka Podawcza

    • Elektroniczna Skrzynka Podawcza
  • Urząd Gminy

    • Dane adresowe
    • Dni i godziny otwarcia
    • Kierownictwo Urzędu
    • Regulamin Organizacyjny
    • Konkursy na stanowisko
    • Ochrona ludności i obrona cywilna
    • Klauzula RODO
  • Druki do pobrania

    • Praca w indywidualnym gospodarstwie rolnym
    • Koncesje alkoholowe
    • Podatek od środków transportowych
    • Podatki i opłaty lokalne
    • Odpady komunalne
  • Gminny Transport Publiczny

    • 2021r.
    • 2020r.
  • Zamówienia Publiczne

    • Plan postępowań o udzielenie zamówienia publicznego
    • Zapytania ofertowe
    • Ogłoszenia przetargów
    • Rozstrzygnięcia przetargów
  • Przetargi ofertowe i ustne

    • 2024r.
    • 2023r.
    • 2022r.
  • Zgromadzenia

    • Informacje
    • Zawiadomienia o zamiarze zgromadzenia
  • Wybory

    • Wybory Prezydenta Rzeczypospolitej Polskiej 2025
    • Wybory do Parlamentu Europejskiego 2024
    • Wybory Samorządowe 2024
  • Organizacje pozarządowe

    • Informacje
    • Konkursy
    • Oferty
  • Zagospodarowanie przestrzenne

    • Zagospodarowanie przestrzenne - ogłoszenia
    • Druki do pobrania
    • Planowanie i zagospodarowanie przestrzenne
    • Projekt Miejscowego Planu Zagospodarowania Przestrzennego 25 obrębów geodezyjnych w gminie Wąsewo wraz z prognozą oddziaływania na środowisko
  • Poradnik interesanta (jak załatwić sprawę?)

    • Małżeństwa, narodziny, zgony
    • Meldunki
    • Dowody osobiste
    • Podatki i opłaty lokalne
    • Ochrona Środowiska
    • Koncesje alkoholowe
    • Zwrot podatku akcyzowego zawartego w paliwie wykorzystywanym do prodkucji rolnej
  • Oświadczenia majątkowe

    • za 2024r.
    • Początek kadencji 2024-2029
    • 2 miesiące przed upływem kadencji 2018-2024
    • za 2023r.
    • za 2022r.
    • za 2021r.
    • za 2020r.
  • Rejestry i Ewidencje

    • Ewidencje ogólnodostępne
    • Ewidencje inne
    • Rejestry ogólnodostępne
    • Rejestry inne
  • Informacja o środowisku

    • Gospodarka odpadami
    • Analiza stanu gospodarki odpadami komunalnymi
    • Wykaz firm posiadających zezwolenie na odbieranie odpadów komunalnych od właścicieli nieruchomości
    • Plany i programy
    • Informacje
    • Obwieszczenia
  • Kontrola zarządcza

    • Oświadczenie o stanie kontroli zarządczej za 2013 rok
    • Oświadczenie o stanie kontroli zarządczej za 2012 rok
  1. Strona główna
  2. Zagospodarowanie przestrzenne
  3. Projekt Miejscowego Planu Zagospodarowania Przestrzennego 25 obrębów geodezyjnych w gminie Wąsewo wraz z prognozą oddziaływania na środowisko
  4. Informacja o konsultacjach społecznych
  5. Rysunki MPZP Wąsewo konsultacje

Rysunki MPZP Wąsewo konsultacje

00_Legenda

01_St. Brzezienko

02_Rososz

03_Mokrylas Wł.

04_Mokrylas Szl.

05_Mokrylas Wł

06_Wysocze

07_Wysocze

08_Zgorzałowo

09_Przyborowie

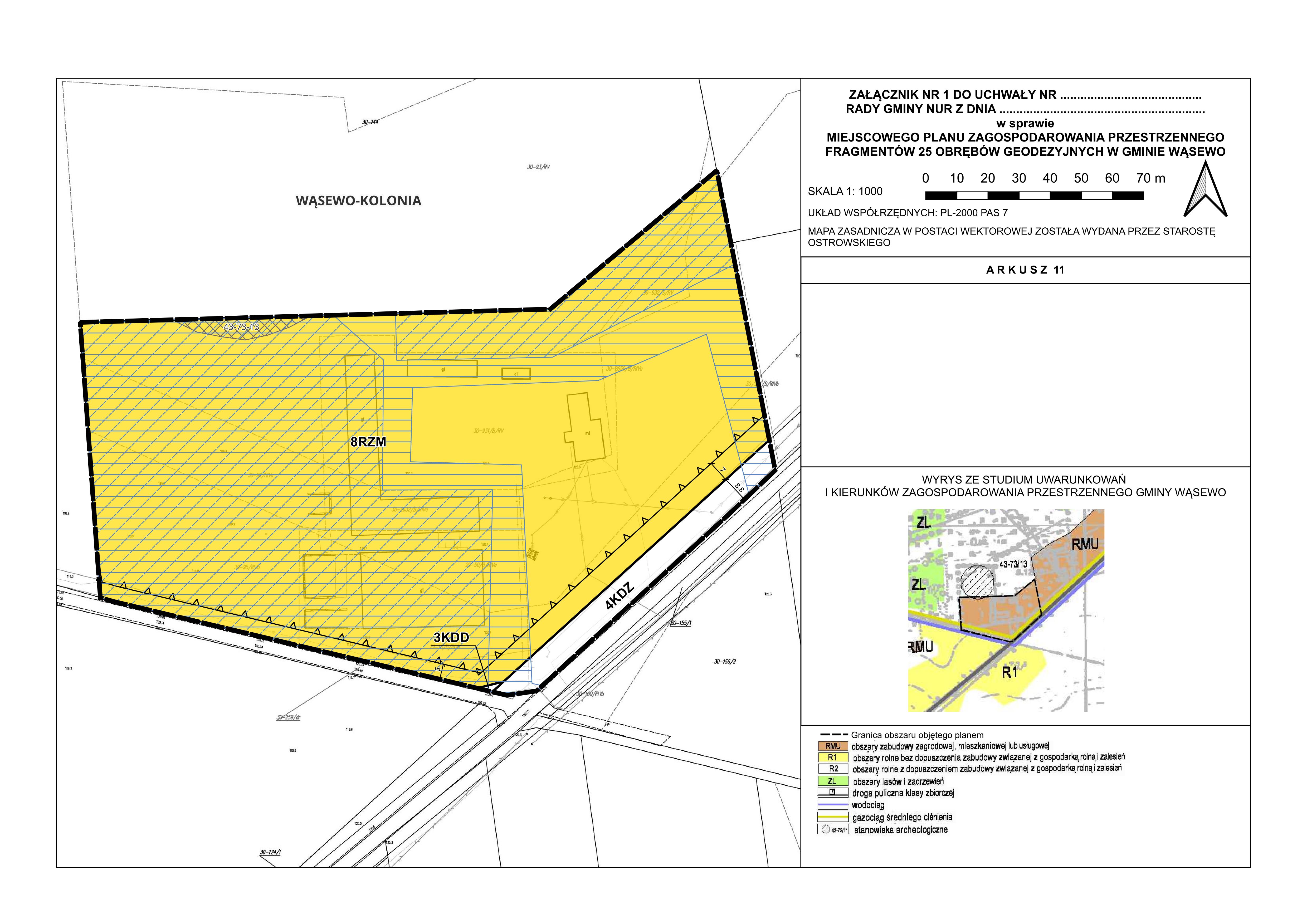
10_Trynosy

11_Wąsewo Kol

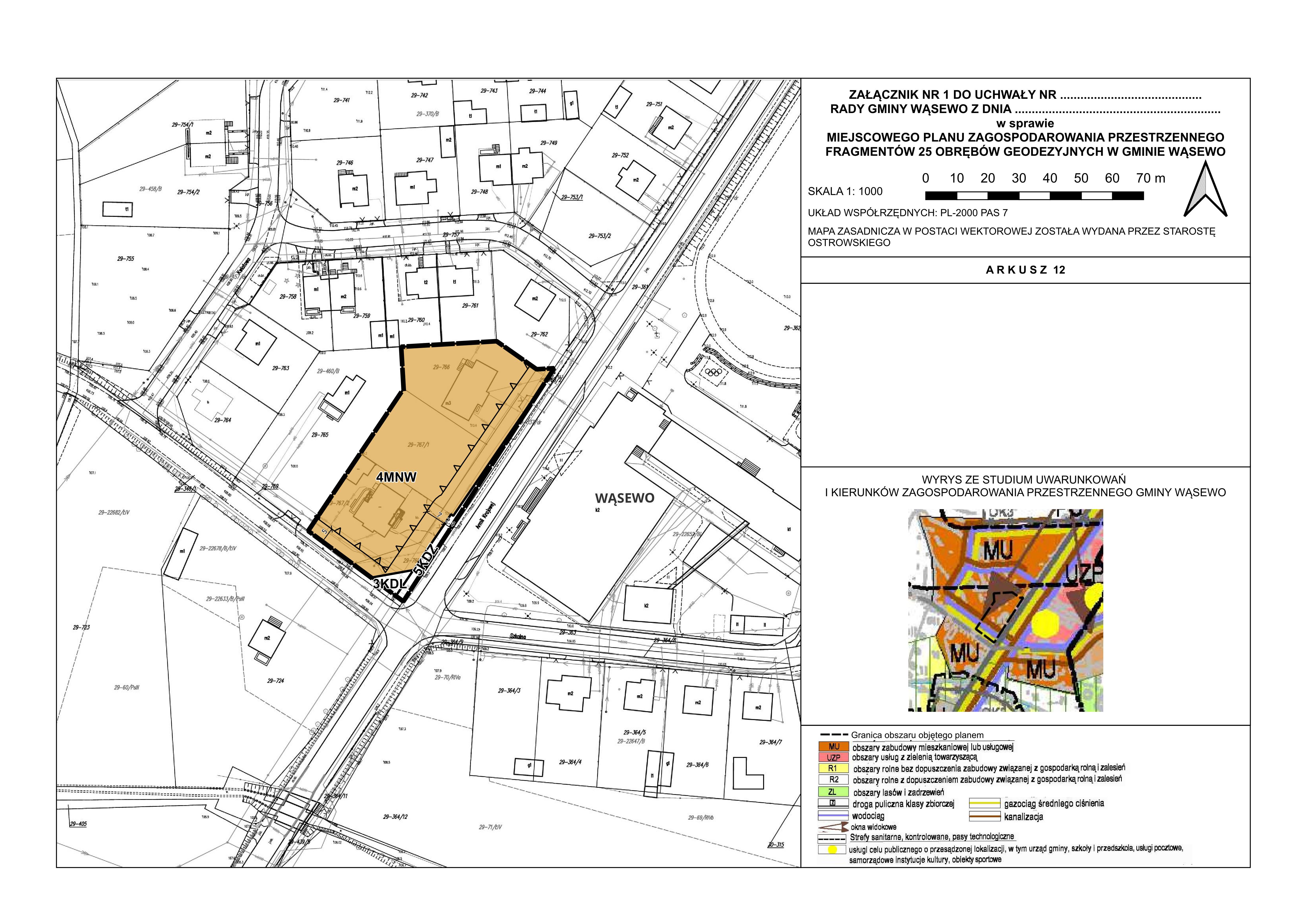
12_Wąsewo

13_Wąsewo

14_Wąsewo

15_Brzezienko Ro.

16_Króle

17_Zastawie

18_Zastawie

19_Zastawie

20_Zastawie

21_Brudki Kol.

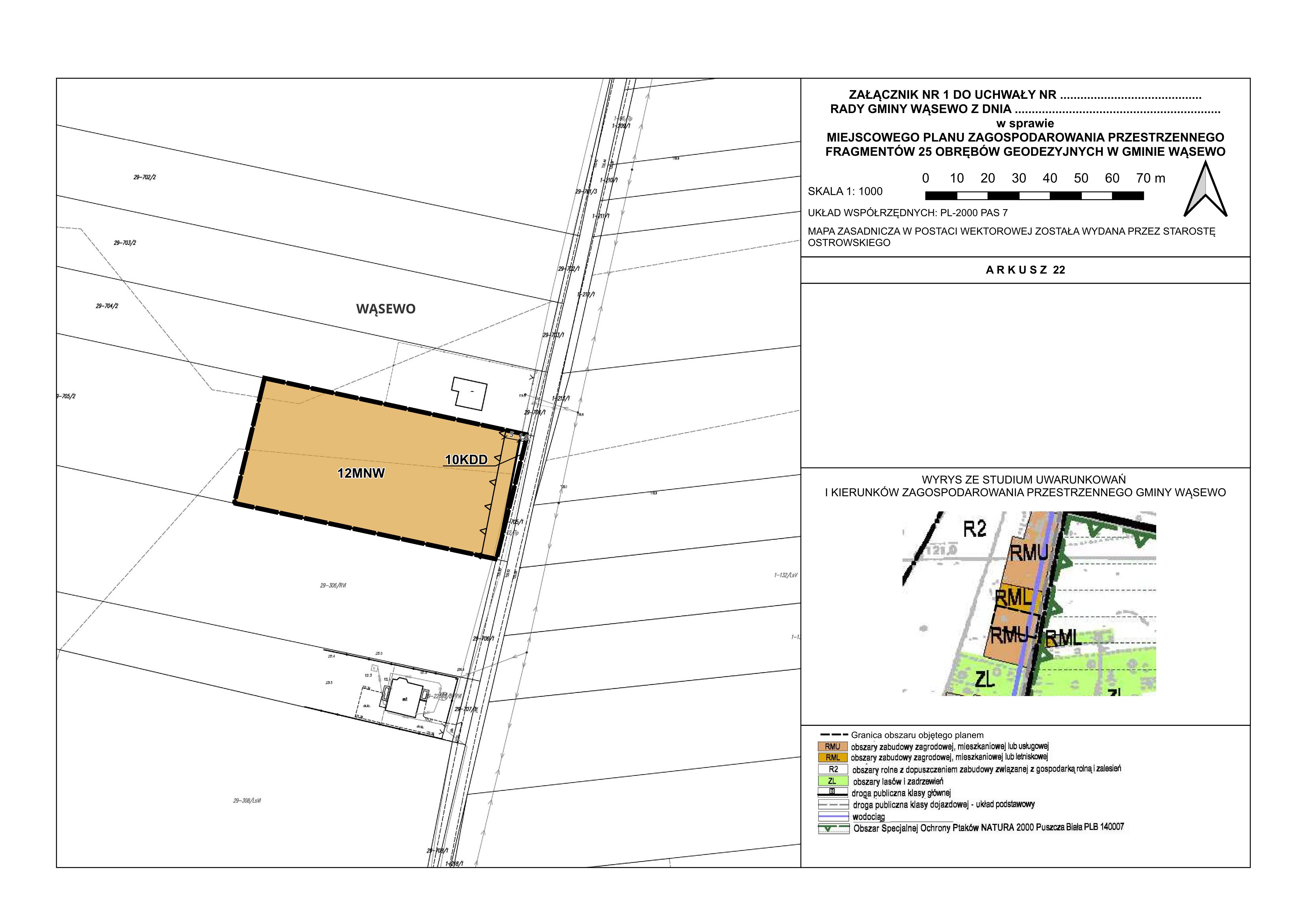
22_Wąsewo

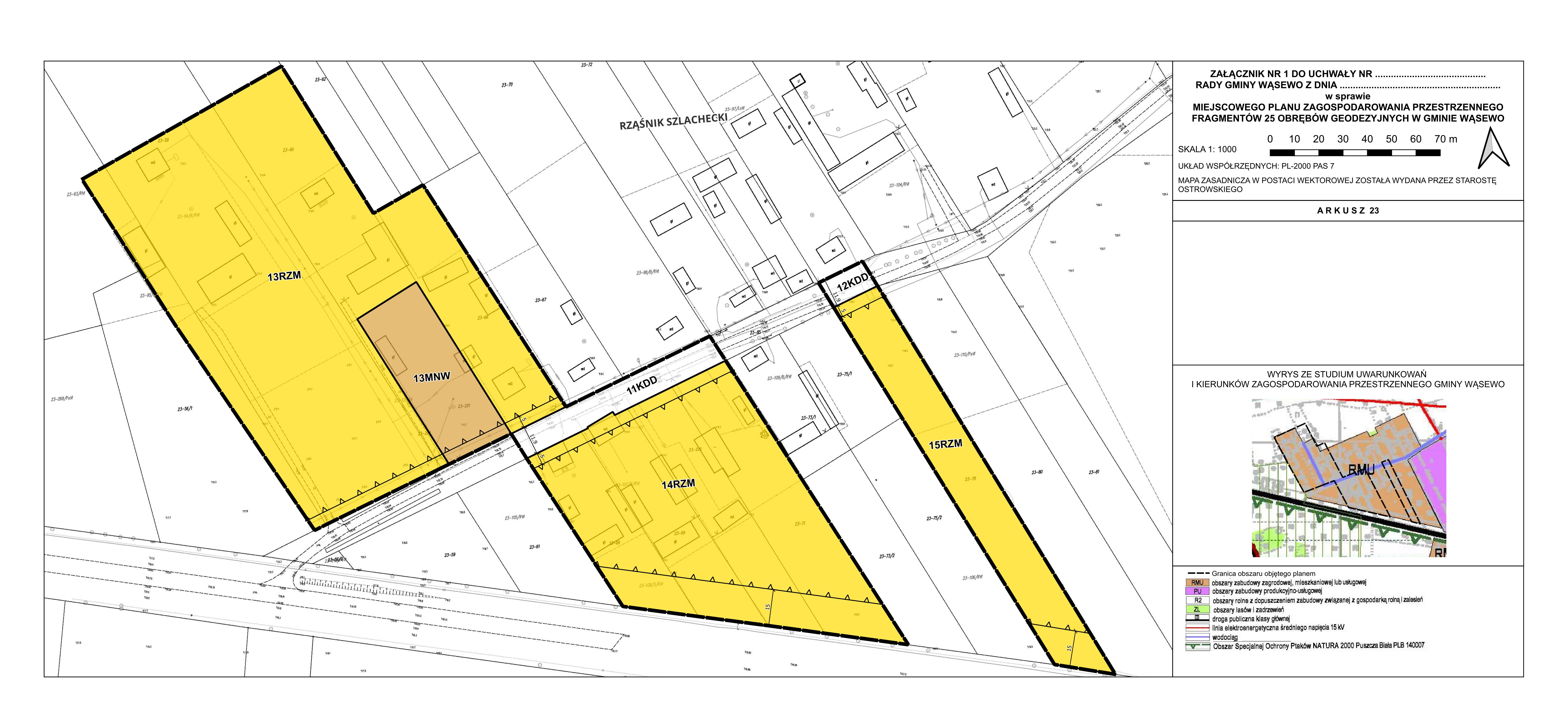
23_Rząśnik Szl.

24_Rząśnik Wł

25_Dalekie

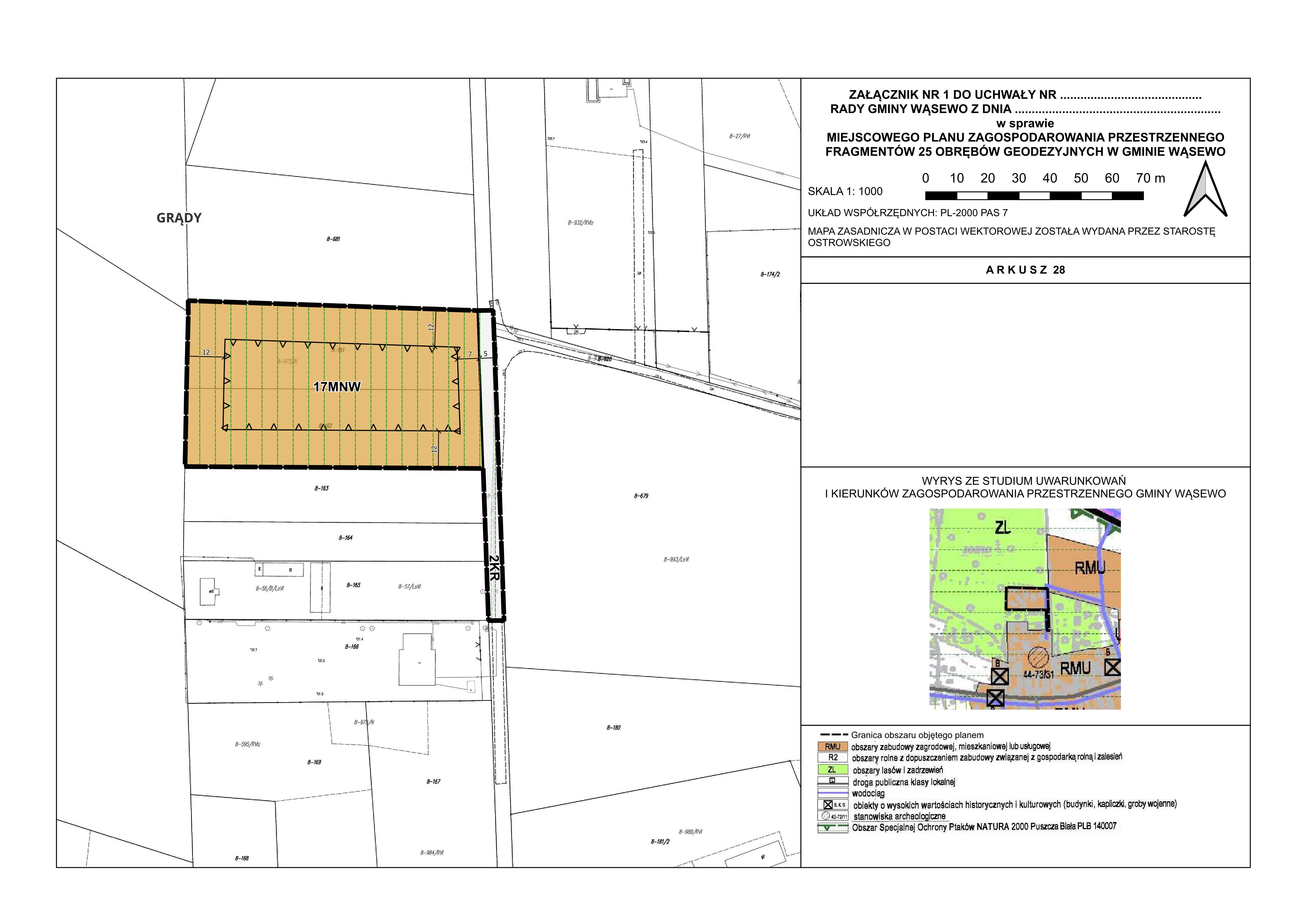
26_Grądy

27_Grądy

28_Grądy

29_Grądy

30_Ulasek

31_Brudki Stare

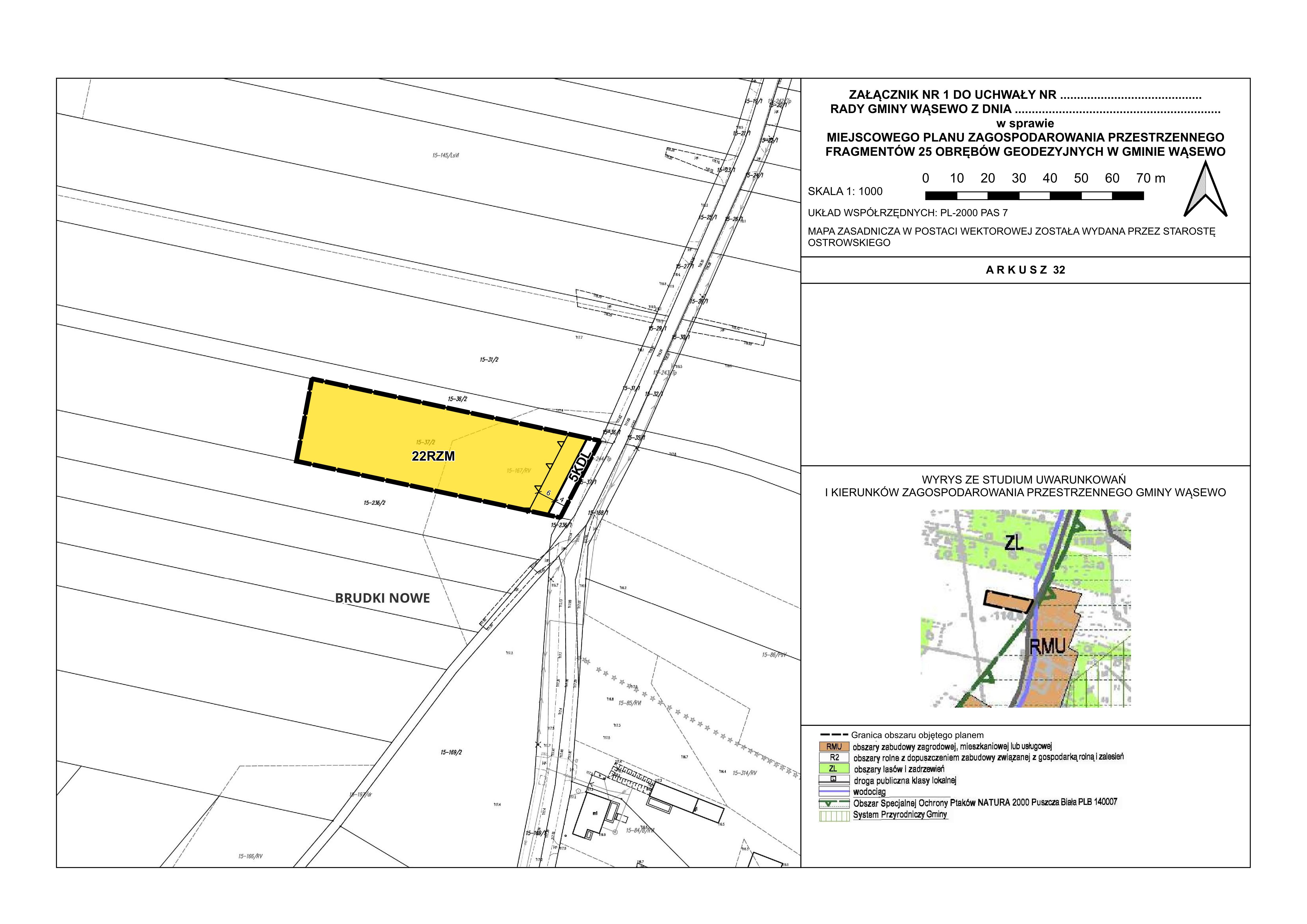
32_Brudki Nowe

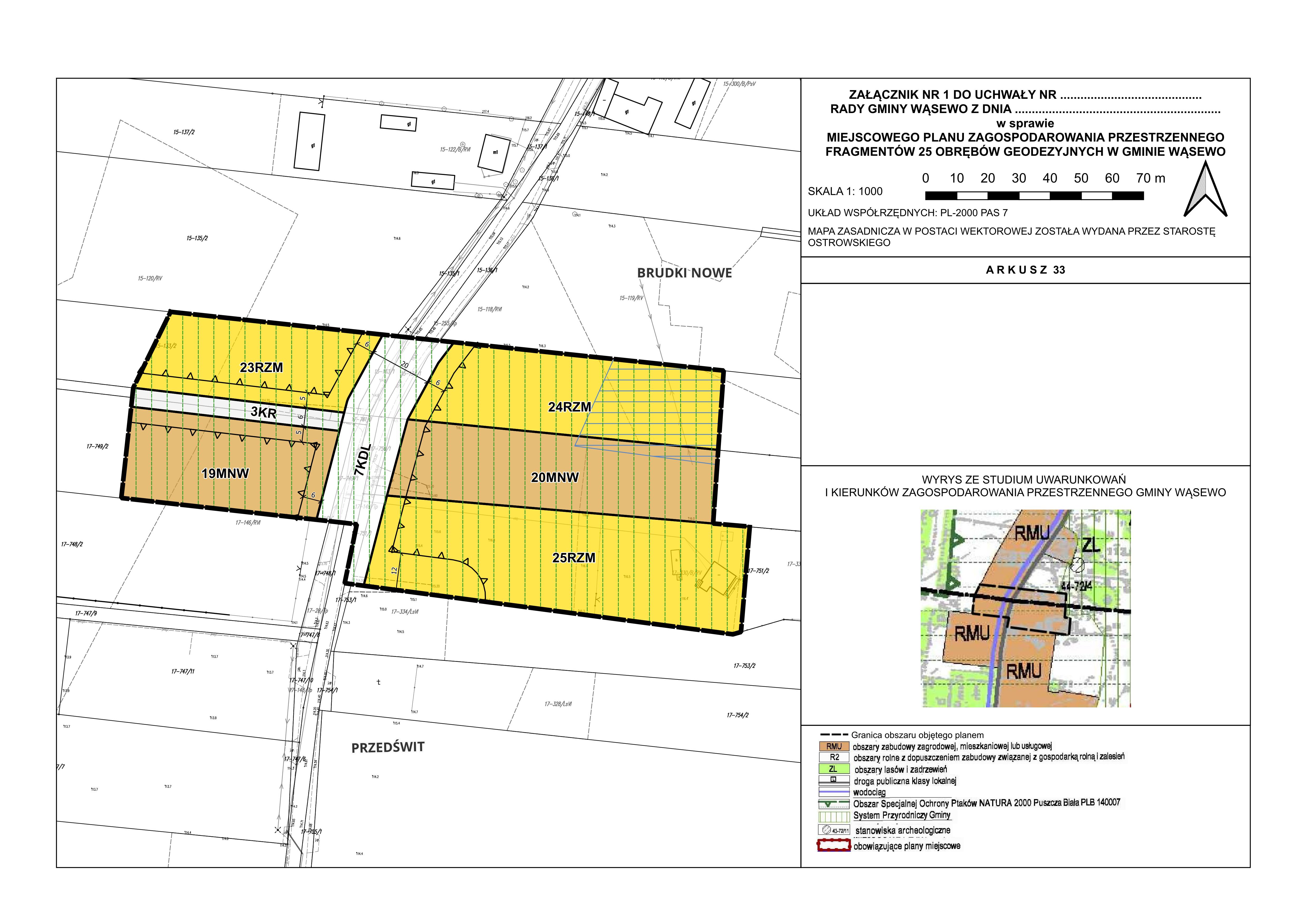
33_Brudki N_Przedświt

34_Przedświt

35_Rząśnik Majdan

36_Rząśnik Majdan

37_Choiny

38_Choiny

39_Choiny

40_Grębki

41_Grębki

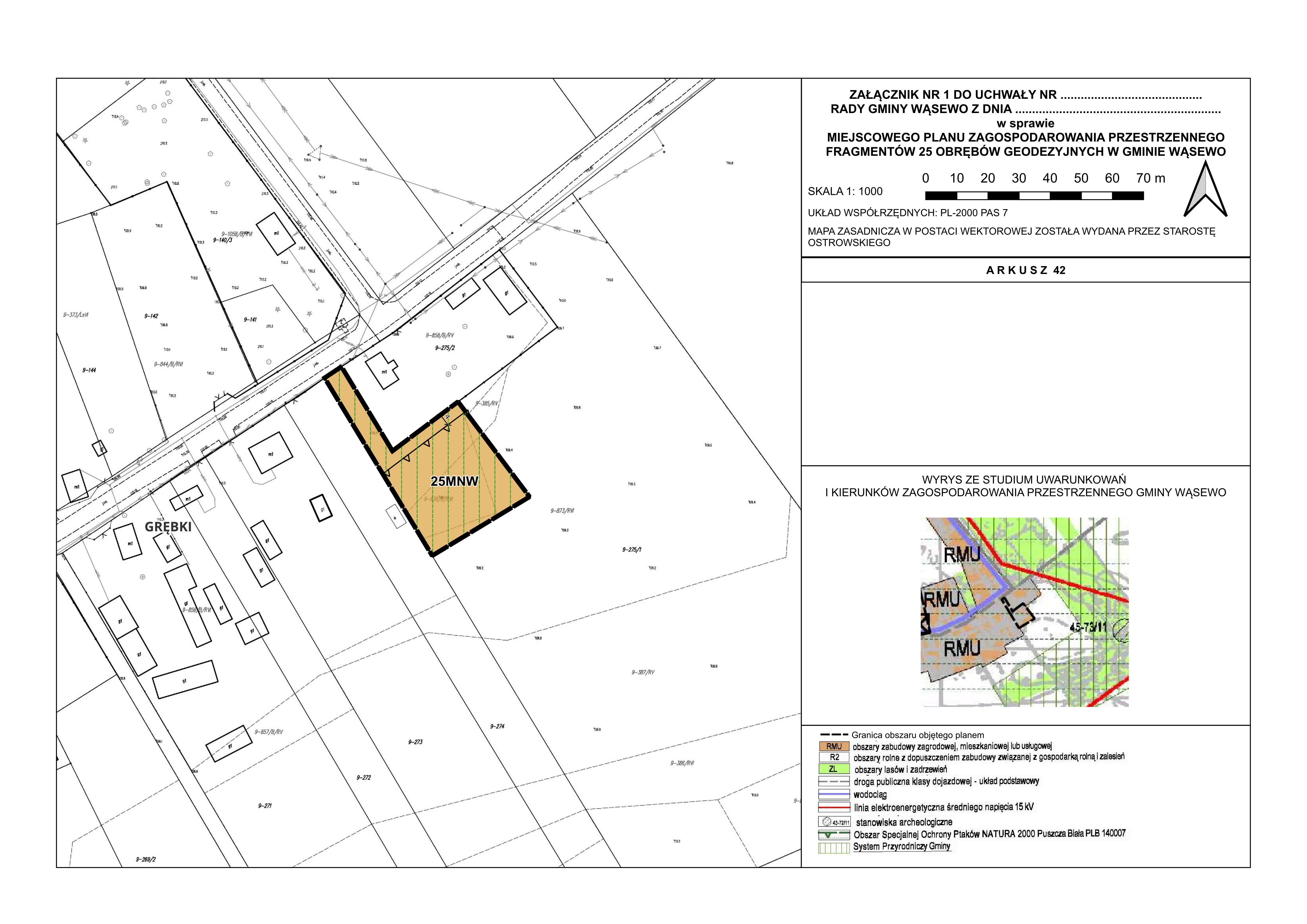
42_Grębki

 

 

 

 

 

 

 

 

 

 

 

 

 

 

 

 

 

 

 

 

 

 

 

 

Wytworzył:
Udostępnił:
Anna Łazicka
(2026-03-03 14:55:01)
Ostatnio zmodyfikował:
Anna Łazicka
(2026-03-03 15:08:07)
       DRUKUJ TĘ STRONĘ Obrazek drukarki    

Menu

  • Obwieszczenia i ogłoszenia

    • Tablica ogłoszeń
    • Ogłoszenia
    • Miejscowy Plan Zagospodarowania Przestrzennego
    • Prognoza Oddziaływania na Środowisko
    • Końcowa sprzedaż węgla dla gospodarstw domowych, uprawnionych do dodatku węglowego
    • Ruszają prace nad opracowaniem WPGO
    • Konsultacje społeczne z mieszkańcami miejscowości Rynek i Zgorzałowo
    • Projekt Programu opieki nad zwierzętami bezdomnymi oraz zapobiegania bezdomności zwierząt na terenie gminy Wąsewo w 2025 r.
    • Projekt Programu opieki nad zwierzętami bezdomnymi oraz zapobiegania bezdomności zwierząt na terenie gminy Wąsewo w 2026 r.
  • Organizacja działania samorządu

    • Wspólnota samorządowa
    • Podstawy prawne działania samorządu
    • Zadania Gminy
    • Organy Gminy
    • Jednostki pomocnicze Gminy
    • Raport o stanie Gminy Wąsewo za rok 2018
    • Raport o stanie Gminy Wąsewo za rok 2019
    • Raport o stanie Gminy Wąsewo za rok 2020
    • Raport o stanie Gminy Wąsewo za rok 2021
    • Raport o stanie Gminy Wąsewo za rok 2022
    • Raport o stanie Gminy Wąsewo za rok 2023
    • Raport o stanie Gminy Wąsewo za rok 2024
  • Gminne jednostki organizacyjne

    • Jednostki Budżetowe
  • Budżet Gminy

    • Projekty budżetu
    • Uchwała budżetowa i jej zmiany
    • Uchwała WPF
    • Opinie RIO
    • Sprawozdania RB
    • Informacja z wykonania budżetu
    • Sprawozdania finansowe
  • Rada Gminy

    • Portal Mieszkańca
    • Kadencja 2024-2029
    • Kadencja 2018-2024
    • Kadencja 2014-2018
    • Kadencja 2010-2014
    • Uchwały Rady Gminy
  • Zarządzenia Wójta

    • Kadencja 2024 - 2029
    • Kadencja 2018 - 2024
    • Kadencja 2014 - 2018
    • Kadencja 2010 - 2014
    • Kadencja 2006 - 2010
    • Kadencja 2002 - 2006
    • Zarządzenia wewnętrzne
  • Petycje

    • Rada Gminy
    • Wójt Gminy
  • Mienie komunalne

    • Stan mienia komunalnego - 2007 rok
    • Stan mienia komunalnego - 2006 rok
    • Stan mienia komunalnego - 2005 rok
  • Biuletyn Informacji Publicznej

    • Polityka Prywatności
    • Redakcja Biuletynu
    • Dostęp do Informacji Publicznej
    • Instrukcja korzystania z BIP
    • Dostęp do Informacji Publicznej nie udostępnianej w BIP
 
Statystyki serwisu | Instrukcja korzystania z BIP | Wersja 3.0.43 WCAG 2.1 AA (12.03.2026 09:38:29)
liczba odwiedzin: 381822